3D viewer
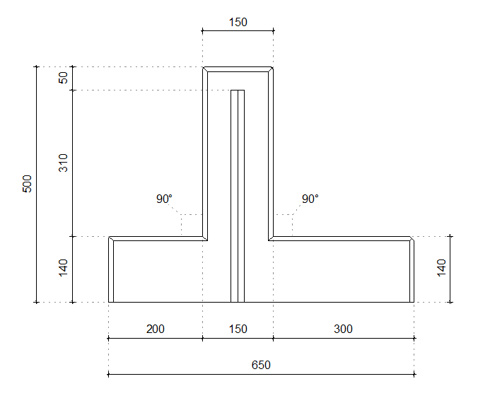
Technical drawing
LR-retaining walls (with heel) - LR050H
LR retaining walls (with heel) "The LR retaining wall with heel has been specially developed for the heaviest (H=heavy) load applications in civil engineering and is...
Read more
Description
LR retaining walls (with heel)
"The LR retaining wall with heel has been specially developed for the heaviest (H=heavy) load applications in civil engineering and is available in a number of different lengths. The LR retaining wall is always 150 mm thick at the top edge and is equipped with a special coupling slat recess. As a result, this retaining wall is ideal for placement at different heights.
* The heel increases stability, allowing the wall to bear higher loads.
* The retaining wall has a total net height, making it easy to measure and place.
* The foot side is the load-bearing side.
* The perpendicular rear side results in an attractive, straight and dimensionally stable retaining wall following placement.
* If required, a gabion or fence, for example, can be installed on the heel following placement.
* The robust design makes this retaining wall ideal for demanding environmental (chemical) applications.
* This retaining wall has a life of at least 100 years.
"The LR retaining wall with heel has been specially developed for the heaviest (H=heavy) load applications in civil engineering and is available in a number of different lengths. The LR retaining wall is always 150 mm thick at the top edge and is equipped with a special coupling slat recess. As a result, this retaining wall is ideal for placement at different heights.
* The heel increases stability, allowing the wall to bear higher loads.
* The retaining wall has a total net height, making it easy to measure and place.
* The foot side is the load-bearing side.
* The perpendicular rear side results in an attractive, straight and dimensionally stable retaining wall following placement.
* If required, a gabion or fence, for example, can be installed on the heel following placement.
* The robust design makes this retaining wall ideal for demanding environmental (chemical) applications.
* This retaining wall has a life of at least 100 years.
Downloads
- LR050H_EN.pdf
- LR050H.ifc
- LR050H.dwg
- LRH_LoadSchedule_2_UK.pdf
- Certificates
- NL_BSB_productcertificaat_vooraf-vervaardigde-betonproducten_17-05-2019_K85568-03.pdf
- CPR_conformiteitscertificaat-van-de-productiecontrole-in-de-fabriek_17-05-2019_CPR-56074-05.pdf
- CSC-certificaat Goud 141-CSC19-2019.pdf
- Zertifikat über die verwendbarkeit in Bauwerken 1329.7.119-1.pdf
- Gütezeichen-Urkunde 1329-M-2020.pdf
- Übereinstimmungszertifikat Beton nach Eigenschaften 1329.1.2040.-1.pdf
- KOMO_productcertificaat_bouwelemten-van-beton_10-7-2023_K2663-12.pdf
- DoP keewanden EN 01202010 signed.pdf
Specifications.
| Concrete mixture | 3rd Generation self-compacting C50/60 | Reinforcement steel | B500 |
|---|---|---|---|
| Weight | 1335kg (L = 3995mm) | Concrete cover | 45mm |
| Dimensional tolerance | +/- 5mm | Concrete surface finish | All visible sides class A (B1 on request) |
| Hoisting device | None, to be placed with clamp | Product warranty | 10 years |
| Environmental class | XA3, XC4, XD3, XS3, XF4 | Design life | 100 years |
Extra options
Shortening and other adaptations
Partitioning wall connector
U wall connector
Bevelling
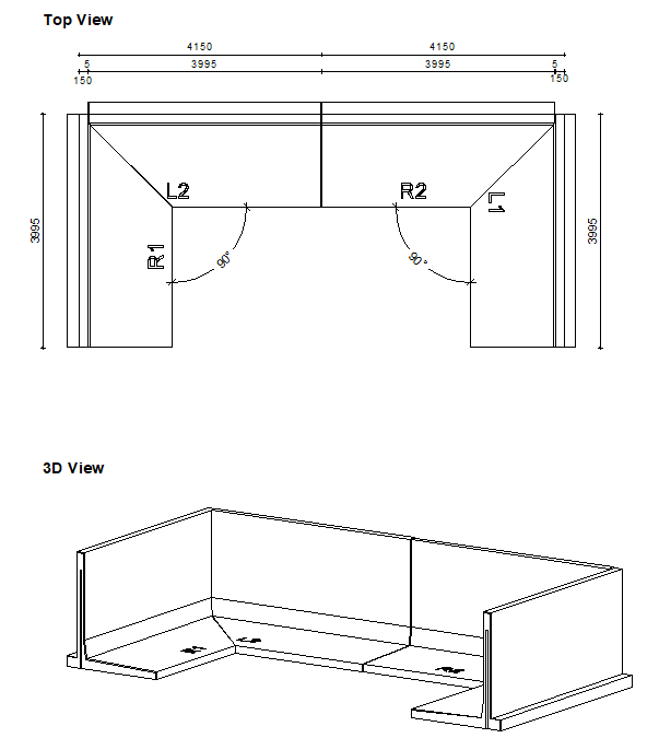
Standard corner solution
Shortening and other adaptations
If required, the retaining walls can be shortened, adapted or supplied with custom recesses. For example, our retaining walls can be equipped with special cast-in elements, such as conduits, lifting anchors or starter bars (protruding reinforcing bars for connecting adjoining concrete components). The retaining walls can also be supplied with a thicker top edge, to allow installations on top of the retaining wall, or with a special relief.
If you send us a sketch of your situation, we will design the adaptation for you. That way you can be certain of getting a custom solution that is right for you.
If you send us a sketch of your situation, we will design the adaptation for you. That way you can be certain of getting a custom solution that is right for you.
-
We like to work sustainably, also when it comes to supplying custom products. Tell us about your needs in good time and we will take your adaptation into account from the outset during production. That way we can avoid unnecessary wastage of materials or unnecessary sawing work afterwards.
-
If unavoidable concrete waste is generated while we are adapting a wall, we recycle it and reuse it during our production process.
Partitioning wall connector
Partitioning walls can be easily combined with other wall types, e.g. in the case of a storage system or silage clamp from which any moisture leakage has to be prevented. To ensure this is the case, it is important that the partitioning wall has the correct shape at the connection point so it can be joined perfectly to the other wall.
If you send us a sketch of your situation, we will design the corner solution for you. That way you can be certain of getting a custom solution that is right for you.
If you send us a sketch of your situation, we will design the corner solution for you. That way you can be certain of getting a custom solution that is right for you.
-
We like to work sustainably, also when it comes to supplying custom products. Tell us about your needs in good time and we will take your adaptation into account from the outset during production. That way we can avoid unnecessary wastage of materials or unnecessary sawing work afterwards.
-
If unavoidable concrete waste is generated while we are adapting a wall, we recycle it and reuse it during our production process.
U wall connector
U walls can be easily combined with other wall types, e.g. in the case of a storage system or silage clamp from which any moisture leakage has to be prevented. To ensure this is the case, it is important that the U wall has the correct shape at the connection point so it can be joined perfectly to the other wall.
If you send us a sketch of your situation, we will design the corner solution for you. That way you can be certain of getting a custom solution that is right for you.
If you send us a sketch of your situation, we will design the corner solution for you. That way you can be certain of getting a custom solution that is right for you.
-
We like to work sustainably, also when it comes to supplying custom products. Tell us about your needs in good time and we will take your adaptation into account from the outset during production. That way we can avoid unnecessary wastage of materials or unnecessary sawing work afterwards.
-
If unavoidable concrete waste is generated while we are adapting a wall, we recycle it and reuse it during our production process.
Bevelling
If you would like an bevelling, or bevelling that runs across several elements, we can create custom bevelling to meet your needs.
If you send us a sketch of your situation, we will design the bevelling for you. That way you can be certain of getting a custom solution that is right for you.
If you send us a sketch of your situation, we will design the bevelling for you. That way you can be certain of getting a custom solution that is right for you.
-
We like to work sustainably, also when it comes to supplying custom products. Tell us about your needs in good time and we will take your adaptation into account from the outset during production. That way we can avoid unnecessary wastage of materials or unnecessary sawing work afterwards.
-
If unavoidable concrete waste is generated while we are adapting a wall, we recycle it and reuse it during our production process.
Standard corner solution
A standard 90° corner solution is available for all our types of retaining wall. If you require a different angle, we can create a custom corner solution.
If you send us a sketch of your situation, we will design the corner solution for you. That way you can be certain of getting a custom solution that is right for you.
If you send us a sketch of your situation, we will design the corner solution for you. That way you can be certain of getting a custom solution that is right for you.
-
We like to work sustainably, also when it comes to supplying custom products. Tell us about your needs in good time and we will take your adaptation into account from the outset during production. That way we can avoid unnecessary wastage of materials or unnecessary sawing work afterwards.
-
If unavoidable concrete waste is generated while we are adapting a wall, we recycle it and reuse it during our production process.